[Marseille] Stade Orange Vélodrome (67.354)
-
LAuvergnat
- Full Member

- Messages : 125
- Inscription : 14 févr. 2014, 14:55
Re: [Marseille] Stade Vélodrome (60,013>67,500)
Sinon, ils démontent les palée de la station de montage des colis simples. On va être vite fixé pour savoir si ils y mettent le colis double ou pas.
- Mercivelodrome2014
- Hero Member

- Messages : 1168
- Inscription : 16 juin 2013, 16:39
Re: [Marseille] Stade Vélodrome (60,013>67,500)
J'avoue avoir un peu de mal à être affirmatif, compte tenu des effets de perspective.fougasse a écrit :On peut voir sur ma capture deux préfas de hauteur différente, ils ont prévus des constructions sur le parvis autre qu'une cage ascenseur ?
Le muret à gauche ce sont les escaliers
Disons que depuis Ray Grassi, ils ont l'air d'avoir prévu des accès vers le niveau -1 RTM ainsi que des sas d'évacuation du parking autobus visiteurs niveau 0.
Faut prendre en compte la volonté affirmée de ne pas mélanger les visiteurs aux autochtones, tout en ayant des voies d'évacuation.
Au-dessus, on retrouve tout à gauche quelque entrées/sorties directement sur le parvis (trois au total) --> éviter de faire le tour devant JB pour monter sur l'esplanade.
Et après, il y a l'emplacement des rampes d'accès pompiers : en fait deux parce qu'on remonte à un endroit de 1m50.
Elles tiennent pas mal de place et auront des murs de séparation. Edit : pour clind'oeiller Stelea et notre ministre de la culture moustachu, une vue niveau sol montrant qu'une palanquée d'issues déboucheront côté allée, sans aller plus haut.
Ce sont elles que l'on doit voir se dessiner en ce moment.
En cas d'urgence, les visiteurs sortiraient dans l'Allée avec un sympathique comité d'accueil casqué et boucliéré.
Dernière modification par Mercivelodrome2014 le 11 mars 2014, 16:57, modifié 6 fois.
Vanitas vanitatum et omnes vanitas
Re: [Marseille] Stade Vélodrome (60,013>67,500)
Pose de contreventement par BM en cours
Et nacelle en place côté JB / VS : reprise de la pose des lés pour aujourd'hui
Edit : Le retour de MV14 et de ses plans. j'achèteeeeeeeeeeeeee
Et nacelle en place côté JB / VS : reprise de la pose des lés pour aujourd'hui
- Minot-du-95
- Newbie

- Messages : 12
- Inscription : 07 mai 2013, 10:58
Re: [Marseille] Stade Vélodrome (60,013>67,500)
Stelea a écrit :Pose de contreventement par BM en cours
Et nacelle en place côté JB / VS : reprise de la pose des lés pour aujourd'huiEdit : Le retour de MV14 et de ses plans. j'achèteeeeeeeeeeeeee
Effectivement, reprise de la pose des lés :

A Jamais les Premiers
- Mercivelodrome2014
- Hero Member

- Messages : 1168
- Inscription : 16 juin 2013, 16:39
Re: [Marseille] Stade Vélodrome (60,013>67,500)
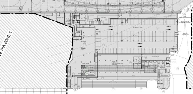
Puisqu'on est dans les plans, une idée assez grossière de l'emprise du parvis à venir devant JB.
On voit que ce n'est pas toute la zone qui est concernée, ça rend moins énorme le boulot à venir.
Sujet non abordé jusque là : que faire de toute la surface laissée libre pour plusieurs années par la surface commerciale beurkée par Pompon ?
Un parking provisoire serait mieux qu'un bourbier à l'abandon
On voit que ce n'est pas toute la zone qui est concernée, ça rend moins énorme le boulot à venir.
Sujet non abordé jusque là : que faire de toute la surface laissée libre pour plusieurs années par la surface commerciale beurkée par Pompon ?
Un parking provisoire serait mieux qu'un bourbier à l'abandon
Vanitas vanitatum et omnes vanitas
- fougasse
- Hero Member

- Messages : 1203
- Inscription : 06 janv. 2013, 23:46
- Localisation : Pas-de-Calais (62126) à 11 heures de bus du Vél
Re: [Marseille] Stade Vélodrome (60,013>67,500)
Petit HS : Hyundai, grand partenaire de l'OL comme vous le savez, annonce une surprise demain à Lyon, avec l'ambassadeur sud coréen présent à une conférence de presse. Selon la rumeur il s'agirait d'un accord sur le naming !
A confirmer donc demain.
Je pose alors ma question : POURQUOI M. Aulas arrive-t-il à trouver un accord pour son naming alors que Lille et Marseille n'y arrive pas ?
Car oui c'est en "cours de discussion" mais rien n'à encore abouti à 5 mois de la livraison...
A confirmer donc demain.
Je pose alors ma question : POURQUOI M. Aulas arrive-t-il à trouver un accord pour son naming alors que Lille et Marseille n'y arrive pas ?
Car oui c'est en "cours de discussion" mais rien n'à encore abouti à 5 mois de la livraison...
Pour un vrai débat sur l'arbitrage vidéo !
- Absolut13
- Moderator

- Messages : 2365
- Inscription : 19 janv. 2012, 12:07
- Localisation : Marseille 13008
Re: [Marseille] Stade Vélodrome (60,013>67,500)
Bonjour,
Pour faire simple !
Il manque 5 arceaux côté Nord,
Pose de 2 contreventements entre les deux colis simple.
Un nouveau Lé de jupe.
Pour finir le colis double il manque 12 contreventements + arceaux et passerelles bien entendu.
Nouvelle livraison d'élément pour le montage de la dernière radiale sous le VS.
Voilà pour moi la bises !!!
Olivier.
Pour faire simple !
Il manque 5 arceaux côté Nord,
Pose de 2 contreventements entre les deux colis simple.
Un nouveau Lé de jupe.
Pour finir le colis double il manque 12 contreventements + arceaux et passerelles bien entendu.
Nouvelle livraison d'élément pour le montage de la dernière radiale sous le VS.
Voilà pour moi la bises !!!
Olivier.
Compte-rendu et photos de la visite privée du chantier du 11/07/2013 à partir de la page 2420 !!!
Compte-rendu et photos de la visite privée du chantier du 10/12/2012 à partir de la page 1170 !!!
Compte-rendu et photos de la visite privée du chantier du 10/12/2012 à partir de la page 1170 !!!
Re: [Marseille] Stade Vélodrome (60,013>67,500)
parce qu'Aulas est le meilleur dans son stylefougasse a écrit :Petit HS : Hyundai, grand partenaire de l'OL comme vous le savez, annonce une surprise demain à Lyon, avec l'ambassadeur sud coréen présent à une conférence de presse. Selon la rumeur il s'agirait d'un accord sur le naming !
A confirmer donc demain.
Je pose alors ma question : POURQUOI M. Aulas arrive-t-il à trouver un accord pour son naming alors que Lille et Marseille n'y arrive pas ?
Car oui c'est en "cours de discussion" mais rien n'à encore abouti à 5 mois de la livraison...
merci au photographes , reporters , station de webcam , météorologue , grutier ... en fait au contributeurs en tout genre
Djstr on Facebook
Djstr on Mixcrate
Djstr on Facebook
Djstr on Mixcrate
- joulces1383
- Sr. Member

- Messages : 357
- Inscription : 29 janv. 2013, 09:40
Re: [Marseille] Stade Vélodrome (60,013>67,500)
merci Absoult !! 
- François Lembrouille
- Full Member

- Messages : 111
- Inscription : 16 déc. 2013, 16:12
Re: [Marseille] Stade Vélodrome (60,013>67,500)
Tiens, salut moustache !djstr1664 a écrit :parce qu'Aulas est le meilleur dans son stylefougasse a écrit :Petit HS : Hyundai, grand partenaire de l'OL comme vous le savez, annonce une surprise demain à Lyon, avec l'ambassadeur sud coréen présent à une conférence de presse. Selon la rumeur il s'agirait d'un accord sur le naming !
A confirmer donc demain.
Je pose alors ma question : POURQUOI M. Aulas arrive-t-il à trouver un accord pour son naming alors que Lille et Marseille n'y arrive pas ?
Car oui c'est en "cours de discussion" mais rien n'à encore abouti à 5 mois de la livraison...
C'est éxactement la réponse que j'aurais donné tu vois!
Tout simplement Aulas s'est bougé le cul voilà tout. Il s'est bougé serieusement pour que l'OL soit propriétaire de son stade et il continue de se bouger pour que ce stade soit rentable à terme...
Y'en a qui s'investissent et qui sont assez compétents dans ce domaine, ce qui n'est pas le cas de ceux qui sont à la tête de l'OM et du Vèl malheureusement.
C'est juste mon constat.
- Macca7342
- Hero Member

- Messages : 637
- Inscription : 07 juin 2012, 16:06
- Localisation : Habite Lyon mais reste d'abord un Stéphanois
Re: [Marseille] Stade Vélodrome (60,013>67,500)
J'aurai tendance à mettre en avant le fait que Aulas sera propriétaire de son outil et donc décide seul avec le conseil d'administration d'OL groupe alors qu'ailleurs les financement venants de Conseil Régionaux, d'Agglomération, de Communes, les petites chamailleries politiques reprennent le dessus et empêchent toute avancée. seul peut-être Nice et demain Bordeaux échapperont à la règle. Mais ce n'est que mon point de vuefougasse a écrit :Petit HS : Hyundai, grand partenaire de l'OL comme vous le savez, annonce une surprise demain à Lyon, avec l'ambassadeur sud coréen présent à une conférence de presse. Selon la rumeur il s'agirait d'un accord sur le naming !
A confirmer donc demain.
Je pose alors ma question : POURQUOI M. Aulas arrive-t-il à trouver un accord pour son naming alors que Lille et Marseille n'y arrive pas ?
Car oui c'est en "cours de discussion" mais rien n'à encore abouti à 5 mois de la livraison...
- fougasse
- Hero Member

- Messages : 1203
- Inscription : 06 janv. 2013, 23:46
- Localisation : Pas-de-Calais (62126) à 11 heures de bus du Vél
Re: [Marseille] Stade Vélodrome (60,013>67,500)
Finalement il ne s'agirait pas du naming, mais il est certain que ce sera plus simple de trouver pour Aulas que pour l'OM..
Pour un vrai débat sur l'arbitrage vidéo !
- Mercivelodrome2014
- Hero Member

- Messages : 1168
- Inscription : 16 juin 2013, 16:39
Re: [Marseille] Stade Vélodrome (60,013>67,500)
Non mais c'était rigolo de lire les sempiternelles conclusions de certain sur une simple rumeur déjà fanée depuis ce matinfougasse a écrit :Finalement il ne s'agirait pas du naming, mais il est certain que ce sera plus simple de trouver pour Aulas que pour l'OM..
http://www.olweb.fr/fr/article/la-ix35- ... 64948.html
Cela dit, rappelons qu'Arema garantit quoi qu'il arrive 3M€ / an et plus si affinités, et Lille s'est enlevé une belle épine du pied après le décès de P. Mauroy.
Ils avaient refusé une offre de Partouche à 2M€.
Allez, pour le plaisir ... avant le prochain bashage "Ailleurs, ils sont plus forts et plus malins que nous".
Une annonce de grande envergure pour L'OL, une vraie bombasse à l'hydrogène, gonflée à l'hélium comme JMA
Dernière modification par Mercivelodrome2014 le 11 mars 2014, 19:11, modifié 6 fois.
Vanitas vanitatum et omnes vanitas
Re: [Marseille] Stade Vélodrome (60,013>67,500)
Il me semble qu'il y a déjà eu beaucoup de débats ici à ce sujet, et que la principale difficulté qui en ressort, c'est qu'il est plus difficile pour un sponsor d'accoler son nom à stade vélodrome qu'à un stade tout neuf car tout le monde, en premier les supporters vont continuer à l'appeler le vel, donc quelle marque va mettre du pognon pour que nous on ne cite pas son nom???fougasse a écrit :Finalement il ne s'agirait pas du naming, mais il est certain que ce sera plus simple de trouver pour Aulas que pour l'OM..
Re: [Marseille] Stade Vélodrome (60,013>67,500)
Selon Rire et Chansons, un accord aurait été trouvé avec Véolia pour le naming à Marseille. Le choix se porterait sur "Stade Véoliadrome"
Info à prendre avec des pincettes.
Info à prendre avec des pincettes.