[Marseille] Stade Orange Vélodrome (67,354)

Informations, photos et vidéos des stades de Ligue 1
Accueil de l'Euro 2016
Répondre
Avatar de l’utilisateur
stadesalahauteur
Hero Member
Hero Member
Messages : 807
Inscription : 18 nov. 2011, 11:09

Re: [Marseille] Stade Vélodrome (60,013>67,500)

Message non lu par stadesalahauteur »

Juu8 a écrit :a force de vendre la place 10€ et que a coté un autre club étranger ! lui a un tarif de 50€ mais il va avoir un supporter footix sans ambiance mais au final qui a le plus de moyens pour recruter des joueurs de hauts niveaux ?
Et oui c'est tellement vrai,
en plus le pire c'est que même avec des tarifs très bas le stade ne se rempli pas...
Avatar de l’utilisateur
Voïdo
Full Member
Full Member
Messages : 128
Inscription : 18 janv. 2012, 14:22

Re: [Marseille] Stade Vélodrome (60,013>67,500)

Message non lu par Voïdo »

raimu a écrit :Dis moi mars de mes deux je t'ai pas sonné ok,, des ambiances j'en ai connu avant toi,, alors si tu est pas content tu viens plus au stade,, ok? tu te prend pour qui? pour moi tu est rien,, ton post tu te l'enfonce profondemment,, vive le nouveau stade,, vive l'om, mort aux cons§!

Désolé de rentrer dans ce débat houleux mais je ne supporte pas la bêtise et les insultes sur des forums, surtout sur un sujet qui passionne chacun à savoir l'OM et le Vél...!
Raimu tes derniers posts sont ridicules et n'apportent rien de constructif au débat!!!! D'ailleurs "mort aux cons" c'est vraiment très fin... Nous te remercions pour ta prose!

Je m'associe à Ultra-e-Libertat et à Mars-13. Je pense que tu n'as pas bien lu leurs posts surtout ceux d'Ultra.!
Aucun d'entre eux ne remet en cause la rénovation du Vél mais plutôt le ratage de 1998, et sur des sujets parallèles mais liés, la philosophie actuelle du monde du foot (-business) et les virages qui se meurent à petit feu malgré quelques soubresauts parfois!

C'est dommage de ne pas pouvoir échanger dans la sérénité!
Juu8
Sr. Member
Sr. Member
Messages : 310
Inscription : 15 févr. 2011, 18:08

Re: [Marseille] Stade Vélodrome (60,013>67,500)

Message non lu par Juu8 »

enfin marseille va avoir un jolie stade et faut arreter avec les oui le tunnel et trop grand on perd de la place; bricolage, le toit pas assez épais enfin on n'est pas a la maternelle donc stop les commentaires inutiles et soyons constructif tous ensemble. :)
Avatar de l’utilisateur
djaurel
Hero Member
Hero Member
Messages : 535
Inscription : 07 juil. 2011, 00:10
Localisation : Marseille
Contact :

Re: [Marseille] Stade Vélodrome (60,013>67,500)

Message non lu par djaurel »

waddle71 a écrit :
Merci pour ta remontée d'info ;)

Par contre : HELP, I need somebody help !!!

Il y aura donc un PC sécurité au pied du stade sur le parvis nord mais où exactement car j'ai du mal à me situer par rapport à la photo ???

J'aurais tendance à dire que ces banches se trouve juste à côté du méga poteaux nord est mais plus côté virage nord (extrémité nord ouest)

J'ai pas souvenir d'avoir vu quelconque représentation d'un bout de batiment à cet endroit là :hum:

Je pensais même plutôt qu'ici il y aurait un escalier permettant de descendre du parvis du virage nord vers le parvis de Ganay. ???

Et l'escalier rouge, il se trouve où sous quelle tribune, à quel endroit ?

Je crois mon cher JackDaniels, on a besoin d'un plan en coupe du virage nord pour visualiser tout ça :)
Bon parlons un peu travaux car CE FORUM EST FAIT POUR CA !!!

Voici mon analyse de la situation que j'espère compréhensible et correcte surtout.

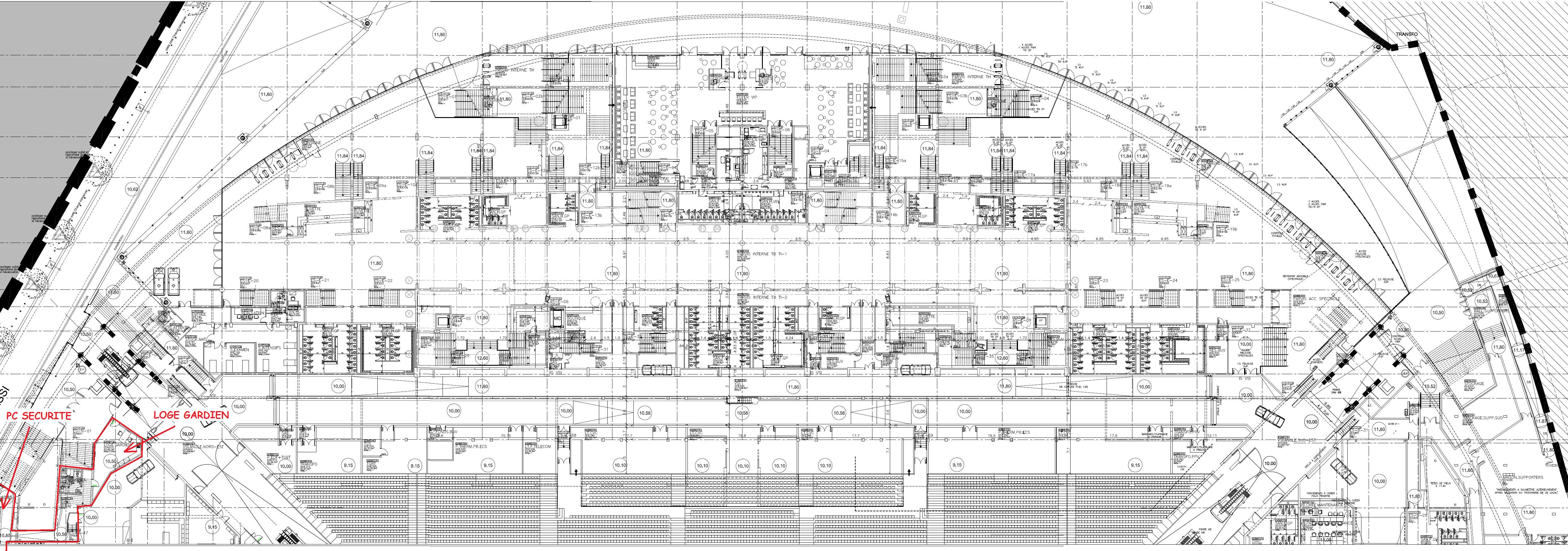
Il y aura donc un PC sécurité côté nord (pour la surveillance du stade hors évènement) et rien à voir avec l'autre PC sécurité en train d'être construit dans la tribune Ganay qui lui servira pendant les matches et autres évènements. On n'a jamais vu ce 2ème PC sécurité sur une vue 3D ou sur un plan car celui-ci sera SOUS le futur parvis nord. J'ai encadré en rouge sur le plan de masse N2 (1er plan ci-dessous) l'endroit où ils sont en train de le construire à ceci près qu'il ne se situera pas à ce niveau mais en dessous. D'ailleurs quand on regarde le plan du N0 de Ganay (qui lui correspond au bon niveau), on peut deviner son emplacement et se rendre compte qu'il communique avec la future loge du gardien, ce qui paraît totalement logique (voir 2ème plan ci-dessous).
plan de masse N2 bis.jpg
N0 Ganay ter.jpg
En ce qui concerne l'escalier rouge provisoire, celui-ci se trouve sous le virage nord et je pense qu'il a été installé pour pallier la fermeture provisoire d'un accès au virage nord (voir 1ère photo ci-dessous) à cause de la construction du PC sécurité, accès qui devait desservir l'escalier gris que l'on voit sur la 2ème photo ci-dessous (ou celui juste derrière). Ils ont donc installé un escalier provisoire reliant la nouvelle coursive à la tribune haute afin de remplacer l'escalier fermé...
8b44daec86.jpg
8b44daec86.jpg (64.44 Kio) Consulté 5332 fois
5fd81c324a.jpg
5fd81c324a.jpg (56.18 Kio) Consulté 5332 fois
Compte-rendu et photos de la visite privée du chantier du 11/07/2013 à partir de la page 2420 !!!
Compte-rendu et photos de la visite privée du chantier du 10/12/2012 à partir de la page 1169 !!!

Toutes les photos et vidéos des travaux à retrouver sur http://www.facebook.com/pages/Stade-V%C ... 51?sk=wall.

Toutes les infos sur le projet et le chantier à retrouver sur http://www.arema-velodrome.com/.
Avatar de l’utilisateur
waddle71
Moderator
Moderator
Messages : 3942
Inscription : 09 oct. 2010, 11:24
Localisation : MACON (71) trop loin du Vélodrome !!!

Re: [Marseille] Stade Vélodrome (60,013>67,500)

Message non lu par waddle71 »

djaurel a écrit : Bon parlons un peu travaux car CE FORUM EST FAIT POUR CA !!!

Voici mon analyse de la situation que j'espère compréhensible et correcte surtout.

Il y aura donc un PC sécurité côté nord (pour la surveillance du stade hors évènement) et rien à voir avec l'autre PC sécurité en train d'être construit dans la tribune Ganay qui lui servira pendant les matches et autres évènements. On n'a jamais vu ce 2ème PC sécurité sur une vue 3D ou sur un plan car celui-ci sera SOUS le futur parvis nord. J'ai encadré en rouge sur le plan de masse N2 (1er plan ci-dessous) l'endroit où ils sont en train de le construire à ceci près qu'il ne se situera pas à ce niveau mais en dessous. D'ailleurs quand on regarde le plan du N0 de Ganay (qui lui correspond au bon niveau), on peut deviner son emplacement et se rendre compte qu'il communique avec la future loge du gardien, ce qui paraît totalement logique (voir 2ème plan ci-dessous).

En ce qui concerne l'escalier rouge provisoire, celui-ci se trouve sous le virage nord et je pense qu'il a été installé pour pallier la fermeture provisoire d'un accès au virage nord (voir 1ère photo ci-dessous) à cause de la construction du PC sécurité, accès qui devait desservir l'escalier gris que l'on voit sur la 2ème photo ci-dessous (ou celui juste derrière). Ils ont donc installé un escalier provisoire reliant la nouvelle coursive à la tribune haute afin de remplacer l'escalier fermé...
Merci Djaurel ;) J'étais prêt à mettre une petite pièce comme quoi ça allait être toi qui allait m'apporter toutes mes réponses ;D

Je me fais souvent piéger par les perspectives suivant les angles de prises de vue de photos, je voyais le bout de mur au 1er plan bien plus haut mais si on se base sur la taille de l'ouvrier, il doit bien faire 5 mètre de haut et c'est la hauteur du futur parvis.

Donc on peut considérer que ce PC sécurité représente le premier élement de la base du parvis nord.

Par contre JackDaniels, si tu nous lis, peux tu nous mettre les plans complets des niveaux N0 et N1 du stade ? Merci par avance ;)
-------- Fiers d'être (supporter) marseillais --------- A jamais les premiers ------------
jordinho
Full Member
Full Member
Messages : 167
Inscription : 10 nov. 2011, 11:05

Re: [Marseille] Stade Vélodrome (60,013>67,500)

Message non lu par jordinho »

desolé pris de tres tres loin lol !
Pièces jointes
DSCF0907.JPG
kyfran51
Sr. Member
Sr. Member
Messages : 289
Inscription : 16 janv. 2012, 17:53
Localisation : Reims

Re: [Marseille] Stade Vélodrome (60,013>67,500)

Message non lu par kyfran51 »

Certains s"émeuvent du cout du stade...mais quand on voit toutes les installations provisoires......en voilà du pognon jeté par les fenetres!!!!

:o
Il est de l’intérêt du loup que les moutons soient gras et nombreux.....
lsx
Moderator
Moderator
Messages : 640
Inscription : 07 nov. 2011, 21:08

Re: [Marseille] Stade Vélodrome (60,013>67,500)

Message non lu par lsx »

Ben oui, stade ouvert pendant les travaux + jauge mini à 42000 places, forcément, il y a beaucoup de provisoire!

Sinon merci Djaurel pour les détails :gooood:
Retrouvez l'ensemble des informations sur la rénovation en première page du topic Vélodrome.
Participez à l'élaboration de cette page en nous indiquant sur le forum les infos que vous voulez y voir figurer. Les critères:ici
Avatar de l’utilisateur
waddle71
Moderator
Moderator
Messages : 3942
Inscription : 09 oct. 2010, 11:24
Localisation : MACON (71) trop loin du Vélodrome !!!

Re: [Marseille] Stade Vélodrome (60,013>67,500)

Message non lu par waddle71 »

jordinho a écrit :desolé pris de tres tres loin lol !
Non mais sympa qd même ta photo :gooood: Merci à toi ;)

On voit bien les 1er escaliers sur la 1ère crémaillère pour accéder à la nouvelle partie haute :)
-------- Fiers d'être (supporter) marseillais --------- A jamais les premiers ------------
Avatar de l’utilisateur
thepec
Hero Member
Hero Member
Messages : 2074
Inscription : 21 juin 2011, 15:42
Localisation : Antibes

Re: [Marseille] Stade Vélodrome (60,013>67,500)

Message non lu par thepec »

Les gradins au niveau du PC sécurité de Ganay sont en train d'être posés! On peut le voir sur la webcam! ;)
Avatar de l’utilisateur
waddle71
Moderator
Moderator
Messages : 3942
Inscription : 09 oct. 2010, 11:24
Localisation : MACON (71) trop loin du Vélodrome !!!

Re: [Marseille] Stade Vélodrome (60,013>67,500)

Message non lu par waddle71 »

thepec a écrit :Les gradins au niveau du PC sécurité de Ganay sont en train d'être posés! On peut le voir sur la webcam! ;)
Je venais juste de le remarquer aussi :)

Maintenant, on aimerait bien voir de nouvelles crémaillères aussi :(
-------- Fiers d'être (supporter) marseillais --------- A jamais les premiers ------------
Avatar de l’utilisateur
Def
Hero Member
Hero Member
Messages : 796
Inscription : 25 août 2011, 23:15

Re: [Marseille] Stade Vélodrome (60,013>67,500)

Message non lu par Def »

Je pense qu'ils ont peut etre modifié le planning avec le froid.. au lieu de couler des crémaillères, tu poses des gradins... enfin c est une supposition.
Nouvelle Vidéo :)
--->https://vimeo.com/99353545<---
Avatar de l’utilisateur
thepec
Hero Member
Hero Member
Messages : 2074
Inscription : 21 juin 2011, 15:42
Localisation : Antibes

Re: [Marseille] Stade Vélodrome (60,013>67,500)

Message non lu par thepec »

Def a écrit :Je pense qu'ils ont peut etre modifié le planning avec le froid.. au lieu de couler des crémaillères, tu poses des gradins... enfin c est une supposition.
J'espère qu'à l'intérieur, ça a bien avancé, car sinon je serais bien déçu! :no:
Avatar de l’utilisateur
djaurel
Hero Member
Hero Member
Messages : 535
Inscription : 07 juil. 2011, 00:10
Localisation : Marseille
Contact :

Re: [Marseille] Stade Vélodrome (60,013>67,500)

Message non lu par djaurel »

J'ai entouré en rouge sur une capture de la webcam l'endroit où ils sont en train de construire le 2ème PC sécurité sur le parvis nord. On devine d'ailleurs les murs et les banches..
Capture.JPG
Capture.JPG (110.07 Kio) Consulté 4660 fois
.
Compte-rendu et photos de la visite privée du chantier du 11/07/2013 à partir de la page 2420 !!!
Compte-rendu et photos de la visite privée du chantier du 10/12/2012 à partir de la page 1169 !!!

Toutes les photos et vidéos des travaux à retrouver sur http://www.facebook.com/pages/Stade-V%C ... 51?sk=wall.

Toutes les infos sur le projet et le chantier à retrouver sur http://www.arema-velodrome.com/.
Avatar de l’utilisateur
waddle71
Moderator
Moderator
Messages : 3942
Inscription : 09 oct. 2010, 11:24
Localisation : MACON (71) trop loin du Vélodrome !!!

Re: [Marseille] Stade Vélodrome (60,013>67,500)

Message non lu par waddle71 »

djaurel a écrit :J'ai entouré en rouge sur une capture de la webcam l'endroit où ils sont en train de construire le 2ème PC sécurité sur le parvis nord. On devine d'ailleurs les murs et les banches..
Capture.JPG
.
Là vu de la webcam, on distingue à peine, ça fait tout rikiki et pourtant sur le photo Arema, il y a des murs de 5 mètres de haut qui font super imposant vu du sol comme quoi :hum:
-------- Fiers d'être (supporter) marseillais --------- A jamais les premiers ------------
Répondre

Revenir à « Ligue 1 »