Attention ce n'est pas la BM qui va passer de l'autre coté pour installé la charpente. Les deux parties sont indépendantes. Le métro a cette endroit la et semi enterré. Ils doit bien y avoir une grue dans le catalogue Sarens avec un volet variable assez long pour pouvoir faire abstraction de tout ça. Je croit que JJ ou slory avait donner quelque info sur une fiche il y a quelque temps de cela.zebaste a écrit :ca c est une bonne chose s ils mettent le dernier du VN aujourd'hui.......
si le compte est bon ca fait presque 60 jours pour mettre le gros de la charpente, si les predictions del burro sont fausses et que l enjambage du métro ne les ralentie pas trop on peut partir sur cette base de 60 jours pour les colis du VS
on est mi-mai, vu qu il faut finir de poser les éléments entre les colis une fois la haut, et qu ensuite il y a la toile à monter, finalement je pense que ca va etre chaud que l on est droit au premier match a domicile avec les trois tribunes couvertes...
Ps: merci piou
[Marseille] Stade Orange Vélodrome (67.354)
- marseillevivi13
- Hero Member

- Messages : 974
- Inscription : 08 nov. 2012, 15:32
- Localisation : AIX EN PVCE
- Contact :
Re: [Marseille] Stade Vélodrome (60,013>67,500)
Compte rendu de la visite du 11 juillet 2013 page 2420 !!!!
Photo de la dernière visite de chantier du 11-07-13 http://www.flickr.com/photos/stade-velo ... 605799684/
Photo de la dernière visite de chantier du 11-07-13 http://www.flickr.com/photos/stade-velo ... 605799684/
Re: [Marseille] Stade Vélodrome (60,013>67,500)
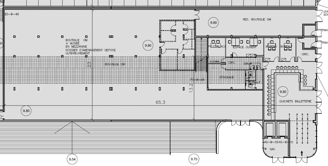
Une questions sur la boutique de l'om,vons t'elle la refaire?l’agrandir? la déplacé?
In un mondo che non cì vuole più cantero di più.
https://www.youtube.com/watch?v=c14IsJXVqgU
L'homme cesse d’être lui même des lorsqu'il parle de sa personne,donnez lui un masque et il vous dira toute la vérité. O-W.
https://www.youtube.com/watch?v=c14IsJXVqgU
L'homme cesse d’être lui même des lorsqu'il parle de sa personne,donnez lui un masque et il vous dira toute la vérité. O-W.
Re: [Marseille] Stade Vélodrome (60,013>67,500)
El burro Azul a écrit :Alexide a écrit :Bonjour
petite question![]()
Normalement pour la reprise en Aout , on aura les 2 virages + ganay couvert , mais ça sera couvert entierement , meme la jupe ?
Tu imagines çà....sans Jean Bouin.
Mais cette image, c'est ce que tu devrais avoir dans un an pile poil!
je pensais plutot à ça
http://www.info-stades.fr/forum/ressources/image/26557
Re: [Marseille] Stade Vélodrome (60,013>67,500)
LEVAGE!!!!!!!!!!!!!!!!!!!!!!!!!!!!!!!!!!!!!!
Re: [Marseille] Stade Vélodrome (60,013>67,500)
C'est parti levage en cours! 
Re: [Marseille] Stade Vélodrome (60,013>67,500)
Levage en cours demolition en continuation le debut de semaine sepasse bien 
Seul la victoire est belle .
- waddle71
- Moderator

- Messages : 3942
- Inscription : 09 oct. 2010, 11:24
- Localisation : MACON (71) trop loin du Vélodrome !!!
Re: [Marseille] Stade Vélodrome (60,013>67,500)
Il y a qques jours, j'ai posté le plan de masse du niveau 0 du stade et là ci dessous tu as une capture qui te montre la future boutique + musée de l'OM qui se trouve sous le parvis de JB juste après la montée des escaliers depuis le Bd Micheletenzito13 a écrit :Une questions sur la boutique de l'om,vons t'elle la refaire?l’agrandir? la déplacé?
-------- Fiers d'être (supporter) marseillais --------- A jamais les premiers ------------
- waddle71
- Moderator

- Messages : 3942
- Inscription : 09 oct. 2010, 11:24
- Localisation : MACON (71) trop loin du Vélodrome !!!
Re: [Marseille] Stade Vélodrome (60,013>67,500)
Pour les absents qui consulteront le forum que plus tard 
-------- Fiers d'être (supporter) marseillais --------- A jamais les premiers ------------
- zebaste
- Hero Member

- Messages : 986
- Inscription : 11 oct. 2012, 11:51
- Localisation : bordeaux...hélas
Re: [Marseille] Stade Vélodrome (60,013>67,500)
Alexide a écrit :El burro Azul a écrit :Alexide a écrit :Bonjour
petite question![]()
Normalement pour la reprise en Aout , on aura les 2 virages + ganay couvert , mais ça sera couvert entierement , meme la jupe ?
Tu imagines çà....sans Jean Bouin.
Mais cette image, c'est ce que tu devrais avoir dans un an pile poil!
je pensais plutot à ça![]()
http://www.info-stades.fr/forum/ressources/image/26557
ha non!!
lors de l annonce du dernier planning, Arema a indiqué que mis a part JB , les tribunes seraient couvertes
donc logiquement c est effectivement lepremier shéma sans JB
mais finalement vu les délais et le temps mis pour "faire" le VN , je crois que début aout on en sera à la deuxième photo
apres il faut voir si l om demande a la ligue de jouer ses deux premiers matchs a l exterieur...
dans ce cas vu les echeances au lieu d avoir le premier match vers le 8 aout ca sera vers le 25
" on ne peut pas dompter les rêveurs"
Re: [Marseille] Stade Vélodrome (60,013>67,500)
Je te remercie pour m'avoir bien éclairé..waddle71 a écrit :Il y a qques jours, j'ai posté le plan de masse du niveau 0 du stade et là ci dessous tu as une capture qui te montre la future boutique + musée de l'OM qui se trouve sous le parvis de JB juste après la montée des escaliers depuis le Bd Micheletenzito13 a écrit :Une questions sur la boutique de l'om,vons t'elle la refaire?l’agrandir? la déplacé?
In un mondo che non cì vuole più cantero di più.
https://www.youtube.com/watch?v=c14IsJXVqgU
L'homme cesse d’être lui même des lorsqu'il parle de sa personne,donnez lui un masque et il vous dira toute la vérité. O-W.
https://www.youtube.com/watch?v=c14IsJXVqgU
L'homme cesse d’être lui même des lorsqu'il parle de sa personne,donnez lui un masque et il vous dira toute la vérité. O-W.
Re: [Marseille] Stade Vélodrome (60,013>67,500)
OOk merci pour les réponses 
On verra bien donc mais au moins j espere que s il y a Ganay et un seul virage couvert, qu il le soit entierement
On verra bien donc mais au moins j espere que s il y a Ganay et un seul virage couvert, qu il le soit entierement
- waddle71
- Moderator

- Messages : 3942
- Inscription : 09 oct. 2010, 11:24
- Localisation : MACON (71) trop loin du Vélodrome !!!
Re: [Marseille] Stade Vélodrome (60,013>67,500)
Suite des captures écrans :
-------- Fiers d'être (supporter) marseillais --------- A jamais les premiers ------------
- waddle71
- Moderator

- Messages : 3942
- Inscription : 09 oct. 2010, 11:24
- Localisation : MACON (71) trop loin du Vélodrome !!!
Re: [Marseille] Stade Vélodrome (60,013>67,500)
Une petite animation pour résumer tout ça
-------- Fiers d'être (supporter) marseillais --------- A jamais les premiers ------------